КИТ БИО 3 (400) в Чебоксарах
Данная модель имеет следующие конфигурации:
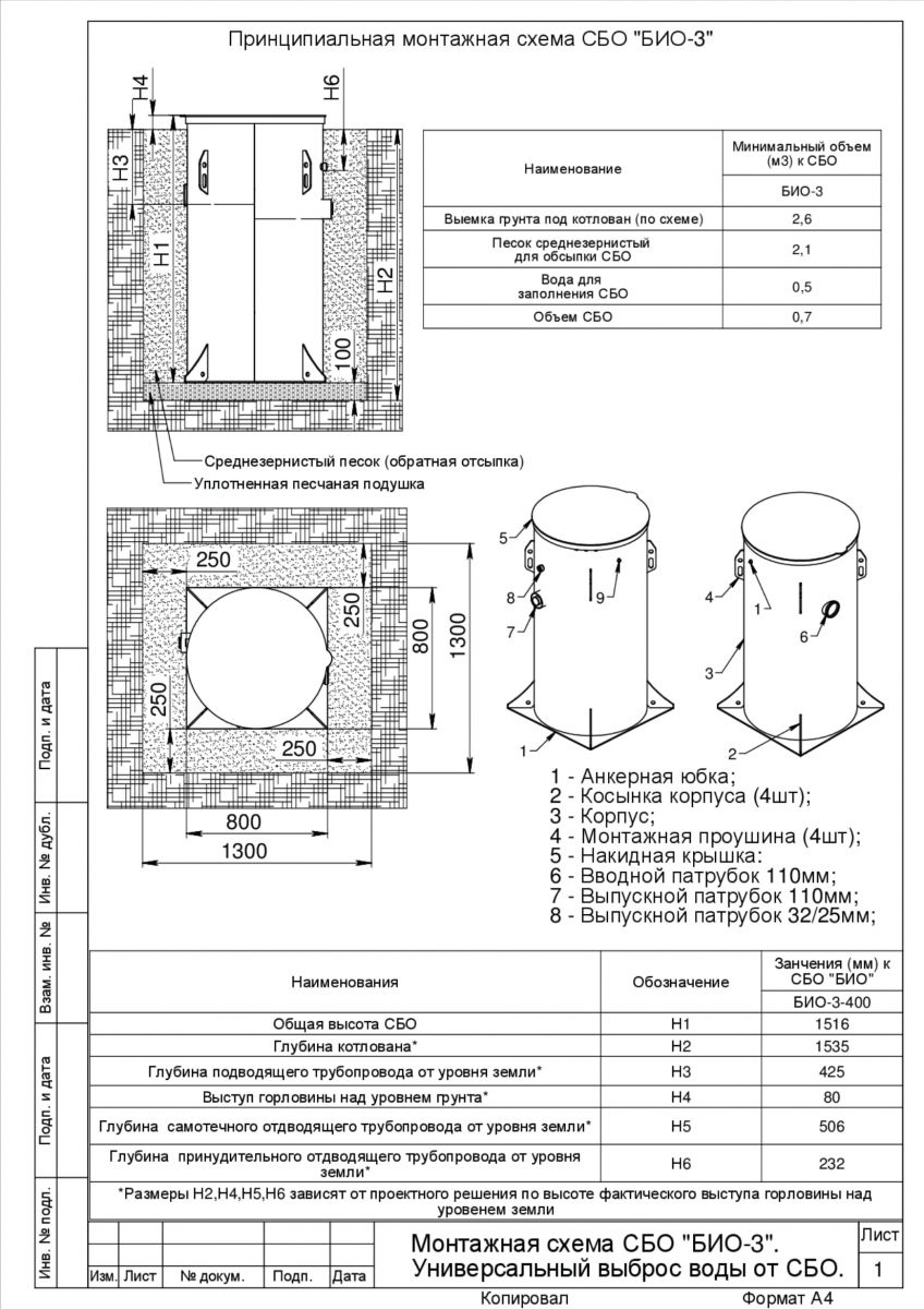
Технические характеристики КИТ БИО 3 (400):
- Количество пользователей: 3 человека
- Залповый сброс: 110 л
- Объём переработки: 0.45 м3/сут
- Энергопотребление: 1.44 кВт/сут
- Диаметр труб (вх/вых): 110/110 мм
- Глубина залегания подводящей трубы: до 43 см
- ДхШхВ: 0.8х0.8х1.5 м
- Способ отвода: самотечный
- Вес: 60 кг
- Проживание: постоянное
- Наличие: на складе
- человек x3
- краны x2
- туалеты x1
- души/ванны x1
Доставка
- Стоимость доставки -
за точным расчетом обращайтесь к менеджеру - Срок поставки - 3 рабочих дня
Оплата
- Наличный расчет
В офисе компании или на месте, куда будет доставлен септик.
- Безналичный расчет
По банковским реквизитам, переводом на карту Visa, Maestro, MasterCard, переводом с помощью сайта Госзакупок или других электронных площадок торгового сектора.
Дополнительные условия:
- Рассрочка 0%
- Кредит
- Бронирование септика до лета
- Потребитель вправе отказаться от товара в любое время до его передачи, а после передачи товара - в течение семи дней
Цена:
91 000 ₽
Сколько стоит монтаж КИТ БИО 3 (400)
?
:
Доставка по Чебоксарам
Шефмонтаж
?
Монтаж
по запросу
16 000 руб.
Цена ниже чем у конкурентов
Модификации КИТ БИО 3 (400)
| Характеристики | КИТ БИО 3 (400) | КИТ БИО 3 (600) | КИТ БИО 3 (800) |
|---|---|---|---|
| Глубина залегания подводящей трубы | 43 см | 64 см | 83 см |
| Тип сброса | самотечный | самотечный | самотечный |
| Размеры | 0.8 x 0.8 x 1.5 м | 0.8 x 0.8 x 1.7 м | 0.8 x 0.8 x 1.9 м |
| Цена септика | 91 000 руб. | 99 500 руб. | 103 000 руб. |
| Цена под ключ |
Монтажные схемы КИТ БИО 3 (400)
Документация
Выполненные работы
Отзывы о нас на Яндекс
Магнум Траст
5,0
77 оценок
Похожие товары:
